Bungalowwoning in doodlopende straat vlakbij centrum Genk
Verkocht Genk Korenstraat 6
Deze woning ligt in een rustige buurt vlakbij het bruisende centrum van Genk. Zowel de E314 als omliggende steden zoals Hasselt, Diepenbeek en Maasmechelen zijn van hieruit vlot bereikbaar. Maar ook het openbaar vervoer, het station van Genk en scholen bevinden zich vlakbij. Deze locatie vormt door de combinatie van rust en centrale ligging de ideale plek om te wonen!
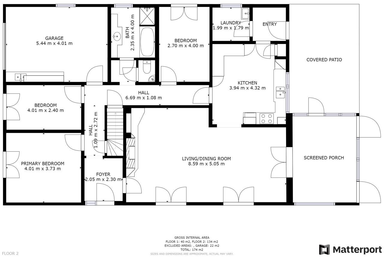
Er is circa 175 m² woonoppervlakte ingedeeld als volgt:
Al het woonplezier van dit huis bevindt zich gelijkvloers. Via de ingang aan de zijkant van de woning kom je uit in de inkomhal. Deze geeft uit op de leefruimte met naastgelegen keuken. De keuken is uitgerust met inbouwapparatuur (vaatwasser, oven, magnetron, keramische kookplaat, koelkast en spoelbak) en hoekkasten voor extra opbergruimte. Naast de keuken is er een praktische bijkeuken met aansluiting voor wasmachine en droogkast.
In de leefruimte met zit- en eethoek is er een houtkachel die zorgt voor een gezellige warmte. Hier bereik je de veranda die uitgeeft op het overdekte terras en de zongerichte ... omheinde tuin.
Verder zijn er drie slaapkamers van 15 m², 11 m² en 10 m² en een badkamer. In de badkamer is er een lavabomeubel, bad en douche. Naastgelegen bevindt zich een apart toilet.
In de inpandige garage met opbergkasten is er plaats voor één auto. Via een aparte ruimte bereik je de kelderberging en de zolder. In deze ruimte is er een bouwlift aanwezig en is er de mogelijkheid om een vaste trap te installeren naar de zolder. De niet-ingerichte zolder biedt mogelijkheid tot het creëren van extra woonruimte!
Extra troeven:
- 32 zonnepanelen met certificaten
- Centrale maar rustige ligging in doodlopende straat
- Zongerichte tuin
- Volledig omheind
- Inpandige garage
Geïnteresseerd in deze bungalowwoning nabij centrum Genk? Bel dan 089 390 990 of mail naar info@immofair.be!
Lees meer Verberg
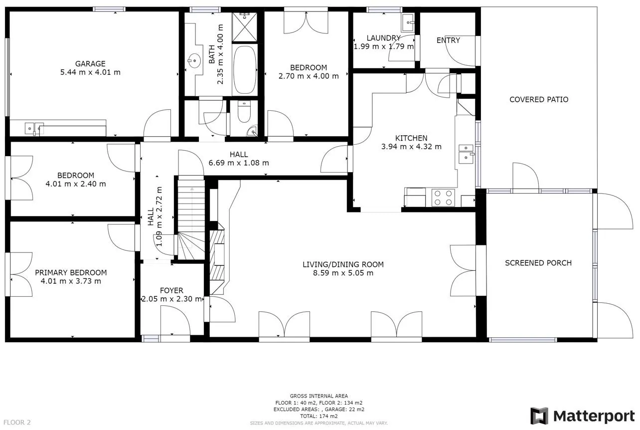
Er is circa 175 m² woonoppervlakte ingedeeld als volgt:
Al het woonplezier van dit huis bevindt zich gelijkvloers. Via de ingang aan de zijkant van de woning kom je uit in de inkomhal. Deze geeft uit op de leefruimte met naastgelegen keuken. De keuken is uitgerust met inbouwapparatuur (vaatwasser, oven, magnetron, keramische kookplaat, koelkast en spoelbak) en hoekkasten voor extra opbergruimte. Naast de keuken is er een praktische bijkeuken met aansluiting voor wasmachine en droogkast.
In de leefruimte met zit- en eethoek is er een houtkachel die zorgt voor een gezellige warmte. Hier bereik je de veranda die uitgeeft op het overdekte terras en de zongerichte ... omheinde tuin.
Verder zijn er drie slaapkamers van 15 m², 11 m² en 10 m² en een badkamer. In de badkamer is er een lavabomeubel, bad en douche. Naastgelegen bevindt zich een apart toilet.
In de inpandige garage met opbergkasten is er plaats voor één auto. Via een aparte ruimte bereik je de kelderberging en de zolder. In deze ruimte is er een bouwlift aanwezig en is er de mogelijkheid om een vaste trap te installeren naar de zolder. De niet-ingerichte zolder biedt mogelijkheid tot het creëren van extra woonruimte!
Extra troeven:
- 32 zonnepanelen met certificaten
- Centrale maar rustige ligging in doodlopende straat
- Zongerichte tuin
- Volledig omheind
- Inpandige garage
Geïnteresseerd in deze bungalowwoning nabij centrum Genk? Bel dan 089 390 990 of mail naar info@immofair.be!
Lees meer Verberg